Square Post Buckle

Product Introduction
A new type of fastener for reinforcing square and rectangular columns in building construction, the utility model is suitable for the rapid reinforcement of the column after the formwork supporting of square column formwork, common formwork, aluminum formwork, etc. (including wooden square, square steel, steel pipe) .  
Product Specifications
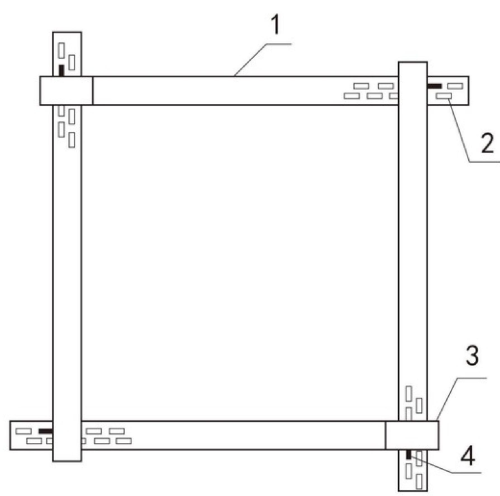
The product is composed of square column buckle, which is matched with special custom-made clamp, and the shape is composed of four elbow single galvanized clipboard, one end of which is arranged with a bending structure, each clamp plate is provided with a number of fixed holes of the same interval along the length direction, and the limit sleeve and the clamp plate are fixed by a wedge-shaped fixed pin through the through hole and the fixed hole to form a square column template fastener which is convenient to install and disassemble. The whole set of productstructure form diagram 1:frame 2:Through hole 3:U-shaped card groove 4:Fixed pin
  • Higher Strength: The square column reinforcement is customized using reinforced I-beam steel (Q500), which is 3-4 times stronger than ordinary steel pipe.
  • No need to use through the wall screw: for the size of the square column less than 2.5M, square column reinforcement can not use the tensile screw at the same time to achieve the same strength with the steel tube reinforcement, and molding effect is also better than the latter. (At present, the maximum size of the square column buckle can be up to 1.8 meters, later according to the customer’s needs to customize the large size of the square column )
  • Wide range of sizes: each square column reinforcement specifications of the applicable size changes in the 300MM or so, the use of a square column reinforcement can be applied to a variety of sizes of square columns, reducing the use of material costs.
  • Simple and fast installation: the square column reinforcements are reinforced with inclined iron, which is easy to operate compared with bolted connections. Moreover, it is easier to use only one square column reinforcement for each reinforcement than two steel pipes.
  • Construction speed: 1 meter by 1 meter, column height of 4 meters of the square column, for example, two people a day can install 7-9, compared with the steel pipe reinforcement speed increases, saving labor costs.

Contact Us

Contact Pansol’s technical experts to help you choose the right steel formwork and support products for your project.

TEL

+8615194153351 +8615275190139

E-mail

pansol@pansolform.com

Linkedin

PANSOL FORMWORK

FACTORY ADD

No.6 Beiyuan Road, Pingyuan County, Dezhou City, Shandong Province, China

=